0511 - 162 90 - 800 pflueger@dp-immo.de

Immobiilien-Details

Bad Nenndorf Wohnen in bester Lage mit eigener Terrasse und Garage

Objekt-Nr. 1584EV Land Deutschland Ort Bad Nenndorf Objekttyp Erdgeschoss
Wohnfläche 85 m² Kaufpreis 242.500 € Zimmer 3 Wohneinheiten 6 Provision 3,57 % inkl. MwSt. vom Kaufpreis jeweils vom Käufer sowie vom Verkäufer
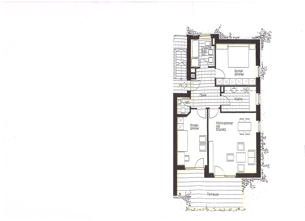
Objektbeschreibung Diese attraktive 3-Zimmer-Eigentumswohnung besticht durch ihre hervorragende Lage und praktische Ausstattung.

Die Wohnung befindet sich im Erdgeschoss eines gepflegten Mehrfamilienhauses, das im Jahr 2000 erbaut wurde, und in direkter Nachbarschaft zum Kurpark von Bad Nenndorf liegt.

Die ca. 85 m² große Wohnung überzeugt mit einem gut durchdachten Grundriss. Zwei der drei Zimmer, mit direktem Zugang zur Terrasse, sind mit Parkettboden ausgestattet und schaffen so ein behagliches Ambiente.

Die geflieste Küche bietet ausreichend Platz zum Kochen, die vorhandene Einbauküche ist funktional ausgestattet.

Das Badezimmer mit Badewanne und Dusche ist gefliest und fügt sich nahtlos in das Gesamtkonzept der Wohnung ein.

Ein besonderes Highlight ist die großzügige Terrasse, die hervorragend zum Entspannen und Verweilen einlädt.

Komplettiert wird die Wohnung durch einen Abstellraum, der von der Diele begehbar ist.

Zur Wohnung gehört ein 14m² großer Kellerraum. Darüber hinaus steht den Bewohnern ein Waschmaschinen- und Trocknerraum, sowie ein Abstellraum für Fahrräder und Kinderwagen zur Verfügung.

Für zusätzlichen Komfort sorgt die zum Objekt gehörende Einzelgarage direkt vor dem Haus, die barrierefrei von der Terrasse erreichbar ist.
Ausstattung Zwei Zimmer sind mit Parkettboden ausgestattet.

Der Flur und das Schlafzimmer sind mit Teppichboden ausgelegt.

Die Küche, mit funktional ausgestatteter Einbauküche, und das Bad, mit Dusche und Badewanne, sind gefliesst.

Im Flur befindet sich eine Nische mit Garderobe.

Neben einem privaten Kellerraum (14m²) gibt es im Untergeschoss einen Waschmaschinen- und Trocknerraum, sowie einen Abstellraum für Fahrräder und Kinderwagen.

Zur Wohnung gehört eine Einzelgarage, die von der Terrasse barrierefrei erreichbar ist.

Das gesamte Gebäude wird durch eine Gaszentralheizung beheizt.
Lage Die Eigentumswohnung befindet sich in einer sehr guter Wohngegend von Bad Nenndorf, direkt am Kurpark.

Bad Nenndorf Ist ein Staatsbad im Osten des Landkreises Schaumburg mit ca. 11.650 Einwohnern. Nordwestlich des Deisters und 15 km südlich des Steinhuder Meeres gelegen bietet das Umland viele Möglichkeiten der Freizeitgestaltung.

Der 34 ha große Kurpark mit historischen Bauten und einem über 200 Jahre alten Baumbestand ist absolut sehenwert. Einmalig in Deutschland ist die kleine Süntelbuchenallee am westlichen Rand des Kurparks, die aus knapp 100 seltenen Süntelbuchen besteht.

Die ruhige und zugleich zentrale Lage macht die Immobilie besonders attraktiv. Alle wichtigen Einkaufsmöglichkeiten, Cafés, Restaurants, Schulen sowie Einrichtungen des täglichen Bedarfs sind in wenigen Minuten zu erreichen. Die Nähe zum Kurpark und zu weiteren Grünflächen lädt zu Spaziergängen und Freizeitaktivitäten im Freien ein.

Mehrere Buslinien halten in ca. 50m Entfernung. Die Fahrtzeit zum Bahnhof beträgt nur wenige Minuten. Die Landeshauptstadt Hannover ist ca. 26 km entfernt und über die Autobahn-Anschlußstelle Bad Nenndorf zu erreichen.

Die Ausrichtung der Landesgartenschau 2026 wird voraussichtlich zahlreiche Vorteile für Bad Nenndorf bringen und kann das Stadtbild und die regionale Wirtschaft nachhaltig bereichern und darüber hinaus helfen sein Image als attraktiver Wohn- und Tourismusstandort zu stärken.
Energieausweis
Baujahr 2000
Energieausweis Verbrauchsausweis
Endenergieverbrauch 73,2 kWh/(m²a)
Warmwasser enthalten Ja
Zustand Gepflegt
Energieausweis gültig bis 29.11.2029
Baujahr lt. Energieausweis 1998

Ihr schneller Kontakt zu uns

Daniel Pflüger
Tel.: 0511 - 162 90 - 800
Mobil: 0177 - 270 81 38
E-Mail: pflueger@dp-immo.de

Immobiliensuche

DP-Immobilien

Ihr persönlicher Immobilienmakler aus Hannover